Служебный гараж

Стоимость: от 17,000 руб./м2

Характеристики проекта:

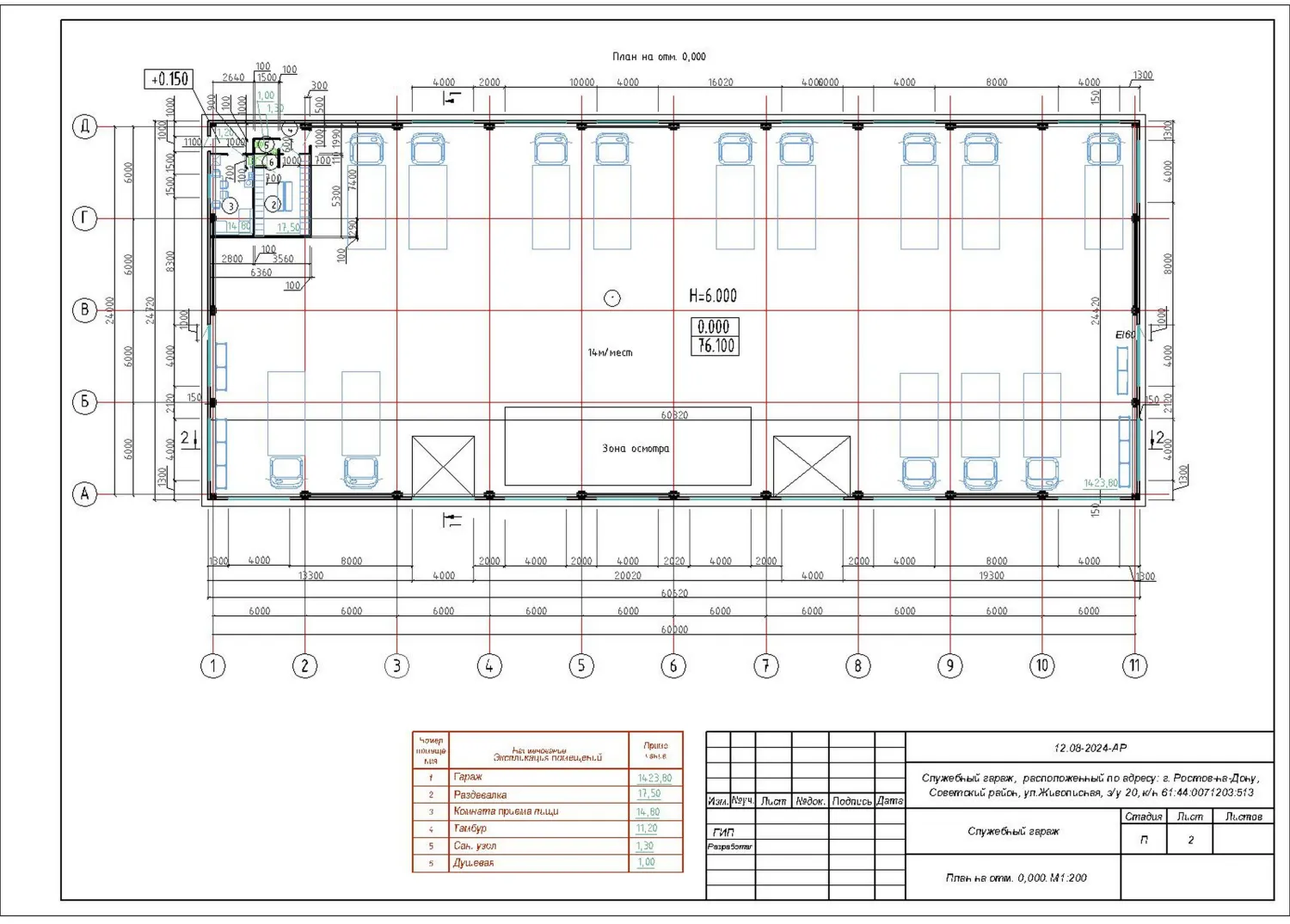
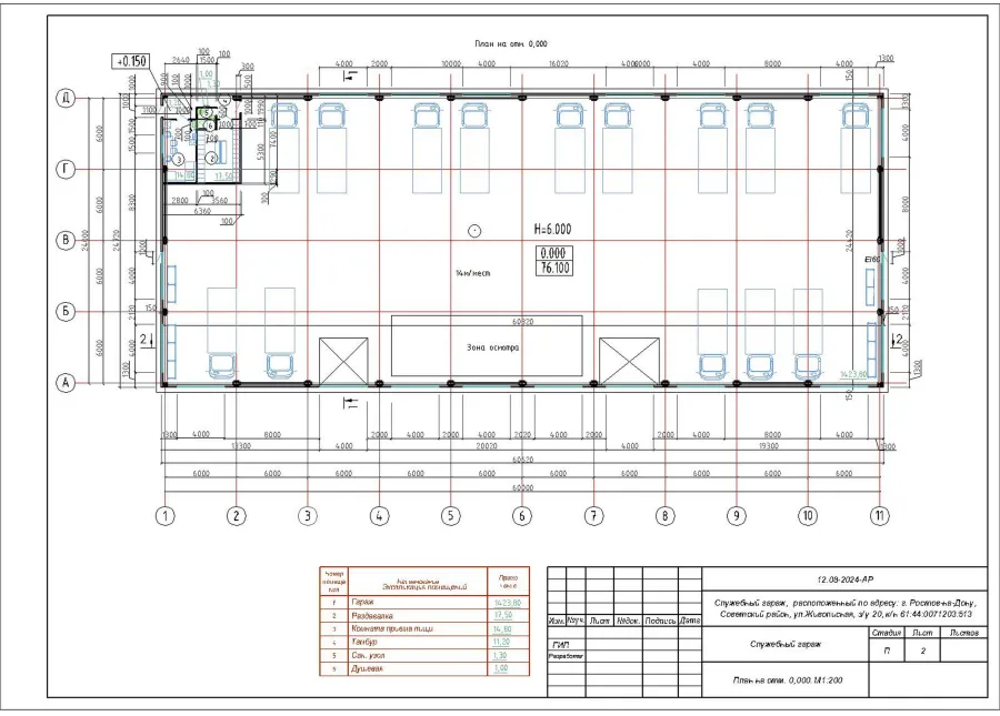
Общая площадь1440 м²
Размеры по осям60м х 24м
Этажей1
Помещений1
Срок постройки3 мес.
Строительство служебного гаража по адресу: Ростовская область, г. Ростов-на-Дону, ул. Живописная, 20. КН 61:44:0071203:513 Высота от уровня чистого пола до низа несущих конструкций 6,00м Ориентировочная стоимость рабочего проекта (КЖ, КМ, КМД) - от 60руб./м2 (в зависимости от требуемых разделов)

Порядок работ

  • 01.ПроектированиеРазрабатываем индивидуальный проект или адаптируем типовой под ваши нужды и участок. Все коммуникации закладываются на этом этапе.
  • 02.ИзготовлениеНа нашем производстве на высокоточном оборудовании изготавливается каждый стальной профиль согласно проекту. Все элементы маркируются.
  • 03.ФундаментЗаливаем облегченный фундамент (чаще всего свайно-ростверковый или УШП), оптимальный для каркасных домов из ЛСТК.
  • 04.МонтажГотовый комплект доставляется на ваш участок. Наша профессиональная бригада оперативно собирает стальной каркас, монтирует кровлю, стены, перекрытия.
  • 05.Утепление и инженерные системыУкладываем выбранный утеплитель, паро- и ветрозащиту. Параллельно монтируются инженерные коммуникации.
  • 06.Наружная и внутренняя отделкаДом готов к финишной отделке любыми материалами

Нужна консультация?

Подробно расскажем о наших услугах, видах работ и типовых проектах, рассчитаем стоимость и подготовим индивидуальное предложение!
Заказать звонок
Ваш телефон
Согласие
Выбор города
Задать вопрос
Представьтесь
Какой у Вас вопрос?
Согласие
Отравить на расмотрение
Согласие на обработку персональных данных

Настоящим в соответствии с Федеральным законом № 152-ФЗ «О персональных данных» от 27.07.2006 года свободно, своей волей и в своем интересе выражаю свое безусловное согласие на обработку моих персональных данных ИП (ОГРНИП , ИНН ), зарегистрированным в соответствии с законодательством РФ по адресу:

г.Ростов-на-Дону (далее по тексту - Оператор).

1. Согласие дается на обработку одной, нескольких или всех категорий персональных данных, не являющихся специальными или биометрическими, предоставляемых мною, которые могут включать:

  • Имя;
  • E-mail;
  • Телефон;
  • Комментарий.

2. Оператор может совершать следующие действия: сбор; запись; систематизация; накопление; хранение; уточнение (обновление, изменение); извлечение; использование; блокирование; удаление; уничтожение.

3. Способы обработки: как с использованием средств автоматизации, так и без их использования.

4. Цель обработки: предоставление мне услуг/работ, включая, направление в мой адрес уведомлений, касающихся предоставляемых услуг/работ, подготовка и направление ответов на мои запросы, направление в мой адрес информации о мероприятиях/товарах/услугах/работах Оператора.

5. В связи с тем, что Оператор может осуществлять обработку моих персональных данных посредством программы для ЭВМ «1С-Битрикс24», я даю свое согласие Оператору на осуществление соответствующего поручения ООО «1С-Битрикс», (ОГРН 5077746476209), зарегистрированному по адресу: 109544, г. Москва, б-р Энтузиастов, д. 2, эт.13, пом. 8-19.

6. Настоящее согласие действует до момента его отзыва путем направления соответствующего уведомления на электронный адрес lstroy61@yandex.ru или направления по адресу г.Ростов-на-Дону.

7. В случае отзыва мною согласия на обработку персональных данных Оператор вправе продолжить обработку персональных данных без моего согласия при наличии оснований, предусмотренных Федеральным законом №152-ФЗ «О персональных данных» от 27.07.2006 г.

Мы находимся

Ростовская область, г. Азов, ул.Победы 17, оф.317 (2 этаж)

Телефоны приемной+7 903-401-78-08+7 (863) 221-78-08
Написать намв WhatsApp
Написать намв Telegram
Режим работы

Без выходных, с 8 до 19 часов